
弗格森输送机械(常州)有限公司
白金会员
已认证

弗格森输送机械(常州)有限公司
白金会员
已认证
如何解决离心机脱水后物料的自动化输送?
离心机脱水后物料的输送方式,可采用如:管链输送机、螺旋输送机、皮带式输送机或人工 搬运等多种输送方式。 首先,根据需方自己的工艺来选择离心机的脱水方式。化工行业常用的离心机有如下几款:
1、立式刮刀离心机

2、卧式刮刀离心机

3、拉袋式离心机

目前在中国提倡节能环保、安全生产却又劳动力紧缺的前提下,如何解决以上三种离心机脱 水后的物料自动化输送,成了化工、医药、新材料、农业等各大行业最为关切的问题。 而在此时,弗格森输送机械(常州)有限公司(孙总:13515269469)在解决离心机脱水后 物料的自动化输送的问题上,公司研发的输送设备无论是在技术上,还是在行业内的口啤上, 都取得了傲人的成果。 因此,公司决定将我们的成果整理出来,分享给其它有需求的行业或同行企业等。
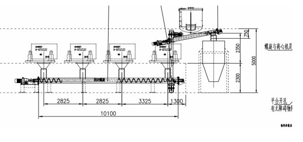
一、选择立式刮刀离心机时,用户是根据自身的产能来匹配相应台数的机器,一般为 2 台、 15 台或者更多的台数。为了能够实现自动化生产以及操作场地的美观,离心机的布置方式 可采取成排或者矩形的方式来布置。离心机脱水后的物料含水率是由批次时间、设备能力来 决定的(一般在 3%和 15%之间),因此离心机设备本身的问题,或者操作不当等问题都会导 致母液流至下层设备中。母液中如含有易燃、易爆和毒性气体,此时就必须要考虑密闭输送。
二、选择卧式刮刀离心机时,用户可根据车间高度和工艺要求,选择 1 台或 10 台设备,并 布置成一字型。选择此款离心机时,前期设计必须要考虑到出料口的离地高度,后续自动化 输送才好对接,很多项目的改造,多半因为离地高度而受到了限制。物料脱水后,因含水率 发生了变化,离心机中的物料有时则会呈现结块状。母液中如含有易燃、易爆和毒性气体, 此时就必须要考虑密闭输送。
三、选择拉袋式离心机时,因为环保、劳动力紧缺、市场需求量小,用户选择此类设备已逐 年减少。但因特殊工艺要求,又或从投入成本上考虑,依然有企业会选拉袋式离心机的脱水 方式,效率高,产能大。但此款离心机的后续物料输送,多数采用料桶人工搬运,因此只能v> 适用于人工成本低、环保要求低的国家和地区。 如何解决离心机物料脱水后的自动化输送,选择什么样的输送方式成了用户的一个大难题。 而如果你选择咨询弗格森输送机械(常州)有限公司(孙总:13515269469),公司会根据 用户的实际情况给你推荐不同的输送设备。 根据各种输送方式的利与弊,一般会推荐以下几种输送方式:
1、料桶、吨袋或手拉车输送 此输送方式简单、设备投入成本低,但弊端是输送现场环境脏乱差,母液散发出刺激性气味, 呛鼻、辣眼,长期在此环境下工作会严重危害到人体健康。在人口红利即将消失,而习主席 又大力提倡“绿水青山就是金山银山”的环保理念政策下,此输送方式极不可取

2、螺旋输送机收集
此输送方式成熟,布置简单。但弊端在于:密封性差、含水率高时物料粘性强,会堵料,会 粘在螺旋主轴上、叶片之间,且输送距离有限,布置不灵活,螺旋主轴内残留量大。 针对这种输送方式,一般可用于单独离心机或者有层高的输送项目上。

3、皮带输送机
此输送方式与螺旋输送一样,成熟稳定,比螺旋输送距离长。但弊端是,密封性差,无法处 理母液的排放、无法处理隔爆充氮等问题,输送环境上甚至比料仓输送环境还要更差,因此, 已经几乎没有企业选用这种输送方式

4、管链输送机收集
此类输送方式是目前绝大多数客户的首选方式。此方式优点是:设备运行平稳、灵活、输送 距离长,能更好的解决在物料收集和输送过程中的密闭、隔爆、充氮、不堵料等问题。

弗格森输送机械(常州)有限公司成立于 2014 年,是一家专注于粉体物料拆包、输送、计 量配料、离心物料收集的专业型企业。截止到 2021 年 7 月底,公司现有员工 85 人,其中本 科以上学历的专业技术人才 25 人,生产人员 48 人,各类专业生产设备齐全。公司秉承优秀 的物料处理理念和技术,秉承 10 多年来专业、敬业、精业的服务理念,为用户提供真挚的 服务和全世界性价比最优的物料处理系统。
公司地址:江苏省常州市钟楼区松涛路 58 号
联系人:孙先生 电话:13515269469
网址:www.czfgs.com 邮箱:2851677050@qq.com
相关产品
更多
相关文章
更多
技术文章
2025-11-12技术文章
2022-01-18
请拨打厂商400电话进行咨询
使用微信扫码拨号